Restroom & Concession Building
Scope of Project
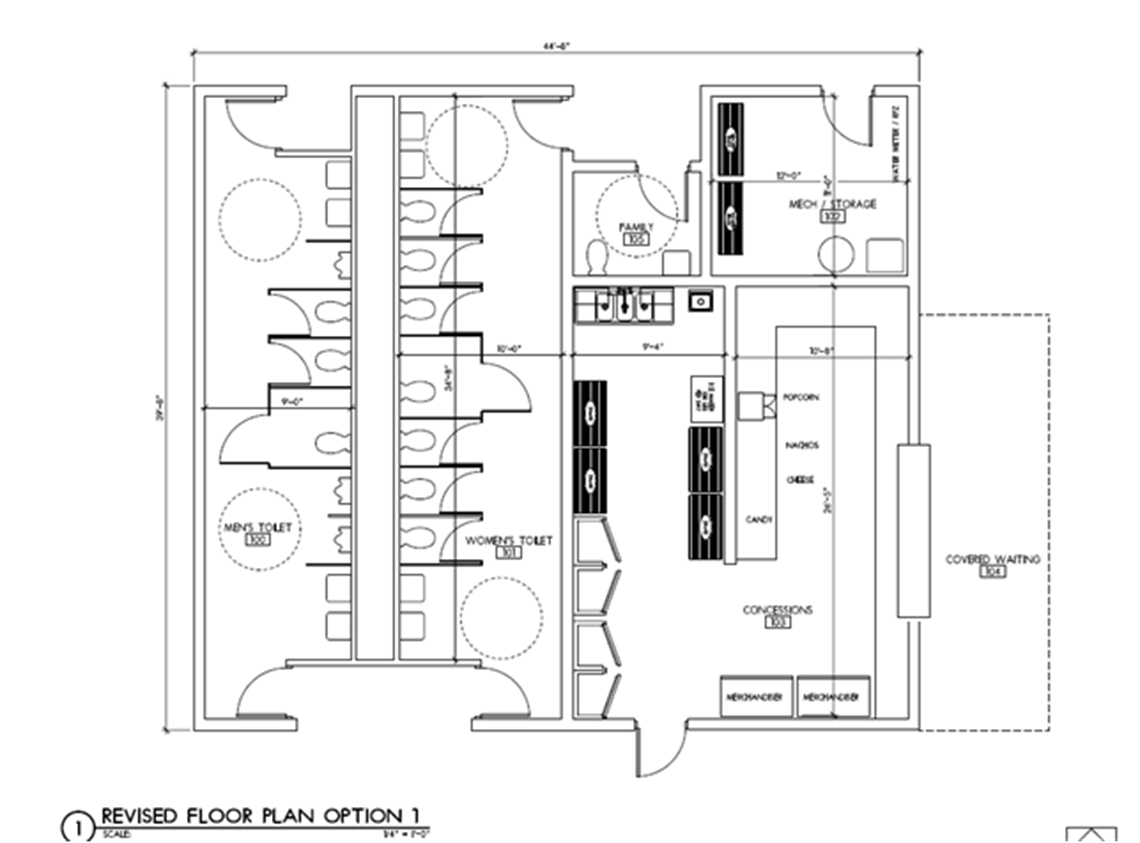
New building to include concession stand (with kitchen), covered patio and flushable restrooms
Concept Plan
Project Timeline
Construction to begin Spring 2025
Community Input
Community Survey 2021 and Summer 2023 Community Input Meeting
2025-2026 Improvement Plans: click here
Construction Updates
May 2025:
- Construction bid awarded Spring 2025
- Water & sewer line installation completed
- Foundation poured
June 2025:
July 2025:
September 2025:
- Interior painted
October 2025:
March 2026:
Project Completed Spring 2026












